一、概述:
原料桶加熱烘箱是專業用于200L原料桶、噸桶,以及各類原料溶解和恒溫加使用的加熱箱,具有控溫精確、溫度偏差小、安全系數高的特點,加熱和恒溫時原料受熱均勻,確保原料品質性能可靠,此設備是化工、添加劑、醫藥中間體、潤滑油、石化產品等行業生產的必備設備。
設備的加熱源可采用多種方式,如:蒸汽加熱、電加熱、熱水加熱、導熱油加熱,也可采用兩種加熱源兼顧同時使用,具備節能、高效的使用組合方式。
原料加熱烘箱分為普通型和防爆型兩種制作方式,防爆型可用于各類易燃易爆產品和區域,防爆方式采用標準防爆要求制作。
此設備已在國內外大型企業獲得使用案例,并得到一致好評和贊譽,如:杜邦(深圳)有限公司、國際香精香料(張家港)有限公司、邁圖高新材料(南通)有限公司、邁圖集團(日本)有限公司、道達爾潤滑油(天津)有限公司、納爾科工業服務(南京)有限公司、迪愛生化工(張家港)有限公司、煙臺新秀化學有限公司、安慶虹泰新材料有限公司、南京科潤新材料有限公司等企業。
二、工作原理簡介:
原料桶加熱烘箱加熱采用對流式加熱方式,該加熱方式具有加熱速率高、溫度均勻性好的特點,安裝在風道內的加熱器通過箱頂部的循環風機強制送風,將加熱器散發的溫度送入工作室,并強制作用于料筒表面,使之快速傳導受熱,工作室頂部的回風口將作用后的降低溫度的熱空氣吸回風道后再經過加熱器升溫送入工作室,如此周而復始構成循環系統。
烘箱溫度自動控溫,儀表根據變送器采集的信號,儀表P.I.D自動計算控溫原件(比例調節閥、角座閥、電磁閥、可控硅)的通斷時間,做到精確控溫的目的,儀表也可加裝DCS 通訊接口,便于遠程監控和控制操作。設備的控制配置監控保護裝置,當主控部件損壞或失靈時造成溫度失控時,監控檢測到溫度異常后緊急切斷加熱源并發出聲光報警,以此確保原料和設備的安全。
三、結構特點:
烘箱整機采用槽鋼作為骨架,外殼包覆薄板(不銹鋼、鍍鋅板、Q235冷軋鋼板),結構穩定牢固,確保長期重載下不會變形。
烘箱保溫材料采用塊狀阻燃巖棉(容重120g/cm2)作為保溫層,此保溫棉具有重量輕、密度大、蓄熱量小的特點。箱門密封條采用硅橡膠空心膠條,硅橡膠具有耐腐蝕、耐高溫(≤220℃)、不易老化的特點。
烘箱內部可疊加雙層使用,可節約設備占地面積,上部疊加層可以直接放置在下層料筒上,也可加裝上層擱架,對于箱內不同原料的裝取操作更為便捷。設備工作室三面安裝防撞裝置,可有效防止裝載時叉車對箱體的撞擊,從而保護了箱體不收損傷。
烘箱底部設有集液槽,當料筒破損發生泄漏可有用于原料收集,通過底部管道直接在設備外部回收,操作簡單、安全、快捷。集液槽內的底層料架為活動料架,可取出后對集液槽和料架清洗處理。
![]() |
![]() |
![]() |
![]() |
![]() |
![]() |
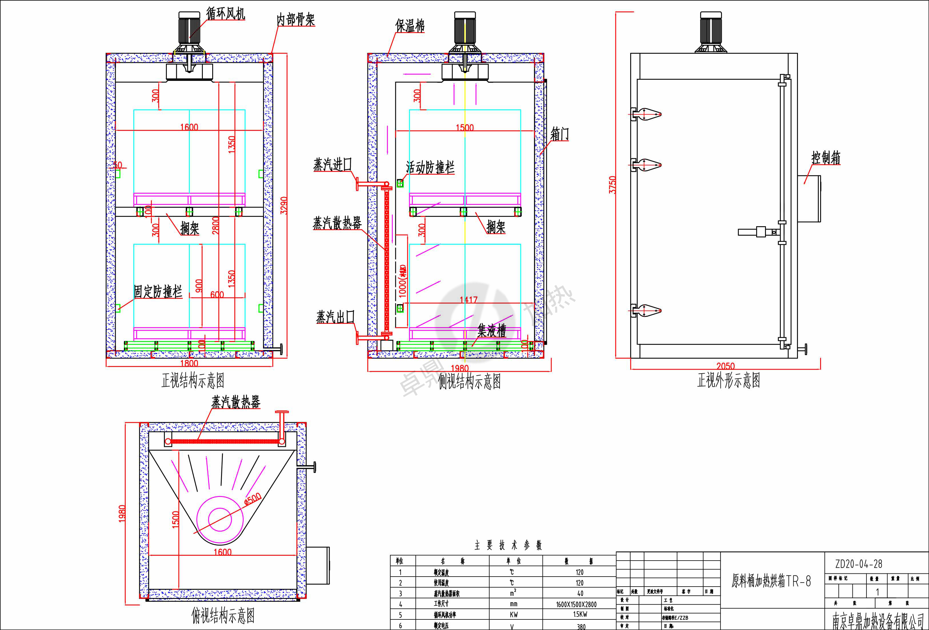
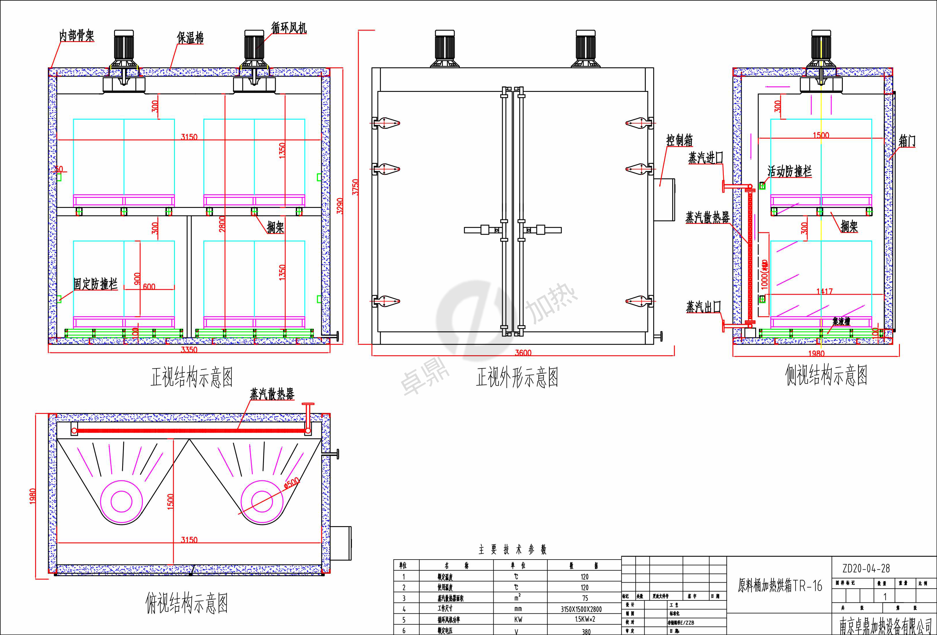
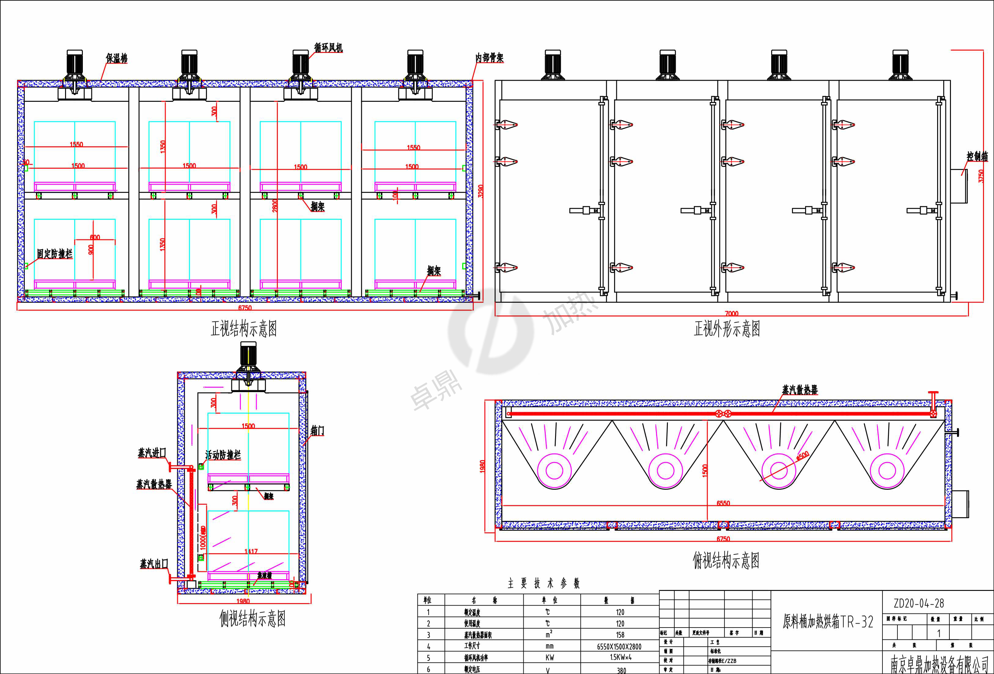
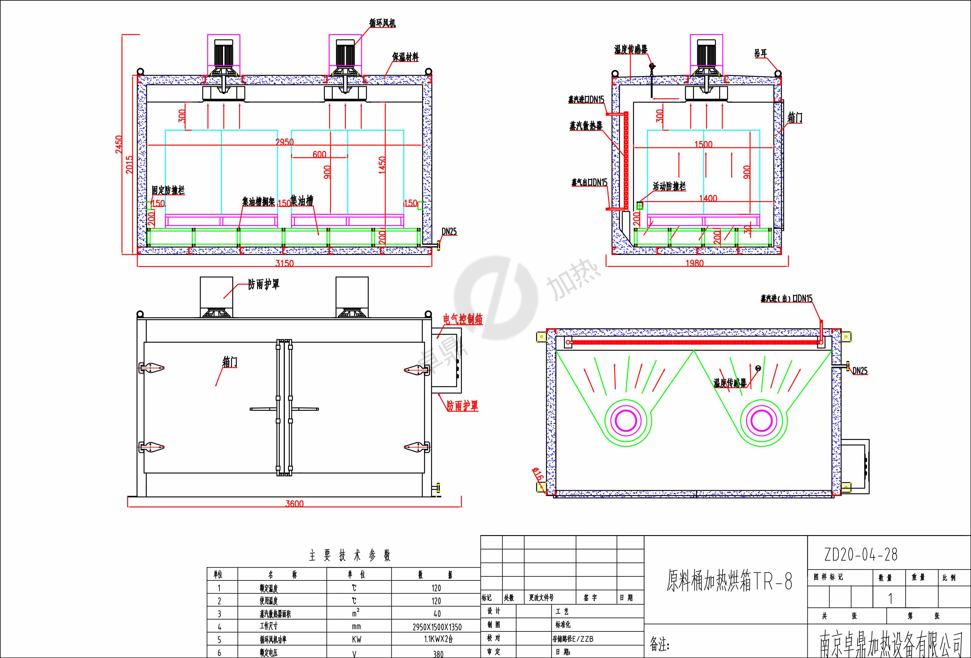
四、CAD 結構示意圖





五、技術參數
